MARSHMALLOW SHORES

Cottage Layout

 

Main Level

Freshly renovated with modern touches that are sure to please. Bring everyone together in the open concept kitchen and dining room, or spread out among the multiple living areas. Bedrooms are tucked away from the action for afternoon naps or a space to call your own. The expansive double-decks offer stunning lake views and plenty of sun.

 
 

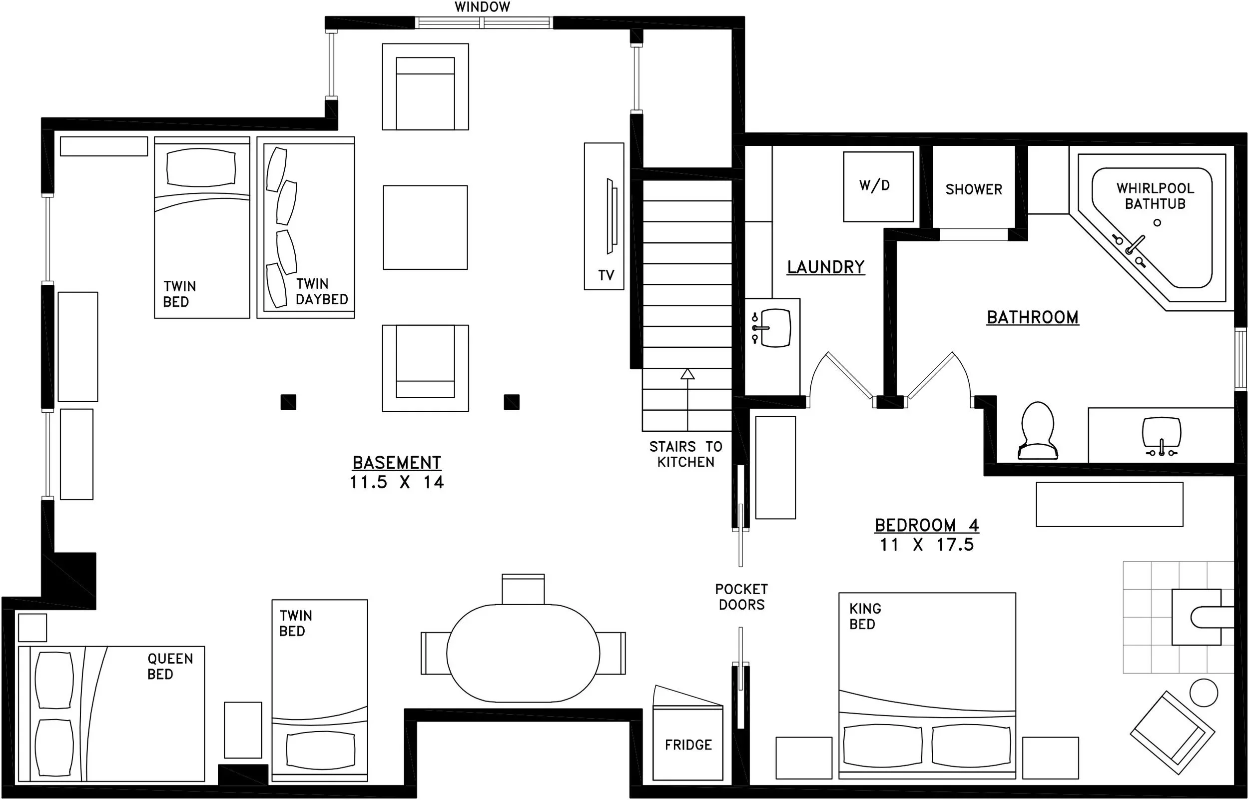
Lower Level

Need a break from the action? Sneak away to the basement lounge designed for movies, video games or family board games. A second fridge keeps drinks and snacks close at hand. The large master bedroom suite offers a private bathroom complete with shower & whirlpool tub. The lounge doubles as the perfect sleepover hangout for the youngest members in your group.